Tomáš Dytrych
Běstvina 90, 538 43 Třemošnice
mobil: 608 512 173
e-mail: info@okna-dytrych.cz
www.okna-dytrych.cz
Běstvina 90, 538 43 Třemošnice
mobil: 608 512 173
e-mail: info@okna-dytrych.cz
www.okna-dytrych.cz
Dřevěná okna a dveře
Řezy oken
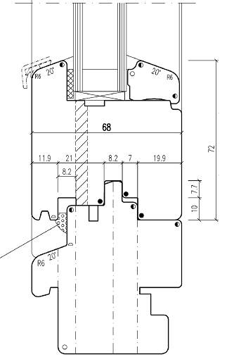
Okna TTK KLASIK a KOMFORT - nová konstrukce SOFTLINE
|
Okenní systém 12.25 Eurofalz pro okapnici DRAU 25. Shodné dělení čepů v křídle a v rámu pro kombinaci otvíravého a pevného zasklení. Naléhávka křídla tl. 16,5 mm pro 2.těsnění. Odvodňovací drážka po celém obvodu křídla. Zasklení o hloubce 18 mm sklon 20° zachovaný i na rámu. Zasklívací lišta se zafrézováním dosedací plochy.








